Aalborg EH-U
Aalborg EH-U is a flow-through electrical heater unit, ideal for heating of engine jacket cooling water.
Type
Electrical flow-through heater. Single-pass configuration. Can be mounted horizontally. The heating surface is optimized by the use of specially designed baffle plates resulting in a very compact, highly efficient and cost effective heater.
Size
The Aalborg EH-U (formerly VESTA™ EH-U) preheater series heaters range from Ø168.3 mm to Ø219.1 mm shells; heating element lengths from 1,000 mm to 1,200 mm (overall length 1,253 mm to 1,453 mm). Nozzles according to DIN 86030 or JIS 16K are tailored to customers’ individual requirements.
Capacity
The heat load ranges from 19 kW to 108 kW with surface loads from 8.0 to 10.0 W/cm2. Any intermediate design is available from the standard range. The EH-U series is designed for 180 – 690 V AC/DC; heating elements are manufactured to suit customer specific power source. Design pressure is 10 bar(g). Design temperature is 95 ºC.
Materials
Carbon steel shell and stainless steel heating elements in AISI 316L.
Fluids
Jacket cooling water.
Applications
The Aalborg EH-U series preheaters are used for heating of jacket cooling water.
Equipment
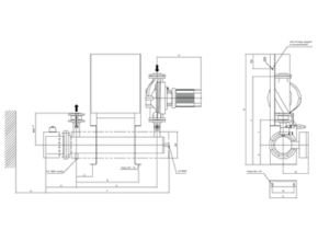
The preheater comes as a complete unit with pump, control cabinet, safety valve and non-return valve, ready for operation.
Approvals
The Aalborg EH-U series complies with the requirements of most classification societies.
Delivery
Alfa Laval Aalborg can deliver any Aalborg EH-U series heat exchanger within 4-6 weeks from receipt of order on FCA Aalborg basis.
Warranty
Alfa Laval Aalborg offers 12 months operating warranty on heat exchangers; maximum warranty is 18 months from time of delivery.
Features and benefits
- Electrical flow-through preheater, horizontal installation.
- Designed for marine applications.
- Flexible design with customization facilities, adaptable to all applications.
Design data
- Heater capacity range : 19 – 108 kW.
- Surface load : 8.0 – 10.0 W/cm2.
- Shell diameters (mm) : Ø 168.3 – 219.1
- Heater lengths (mm) : 1,000 – 1,200 (alt. 1,500).
- Design pressure : up to 10 bar(g).
- Design temperature : 95 ºC.
- Materials: Tubes : AISI 316L stainless steel.
Shell : carbon steel.
How it works
Aalborg EH-U is a flow-through electrical heater unit, ideal for heating of engine jacket cooling water. The preheater’s heat load capacities range from 15 to 270 kW, with standard design values of 10 bar(g) and 95°C.
The Aalborg EH-U is installed horizontally and comes as a complete unit with pre-mounted pump, control cabinet, safety valve and non-return valve, ready for installation.

The Aalborg EH-U is installed horizontally and comes as a complete unit with pre-mounted pump, control cabinet, safety valve and non-return valve, ready for installation.


Read more :